Architecture
About Me
Architecture
About Me
Driven by the desire to shape identities
Silver Nest
2024
Jenga Heights
2024
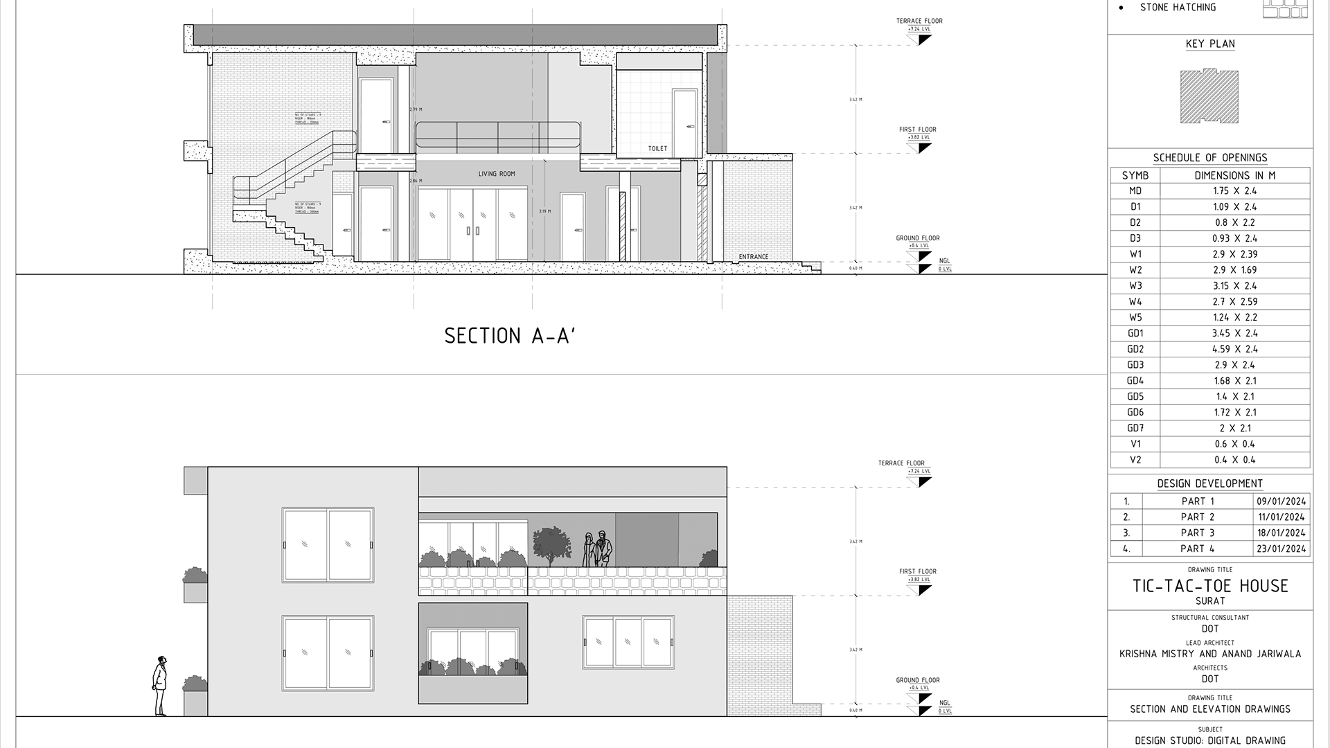
Tic-Tac-Toe House Recreation
2024
↑
Back to Top