A Bold Move
Jenga Heights is a distinctive 8-storey residential complex that reimagines urban living through playful and purposeful design. Inspired by the iconic stacking game Jenga, the apartment's concept revolves around the creative extrusion of key living spaces — primarily the bedrooms and kitchens — to form a dynamic, staggered façade.

Jenga Heights reimagines urban living through playful and purposeful design. Inspired by the iconic stacking game Jenga, the apartment's concept revolves around the creative extrusion of key living spaces — primarily the bedrooms and kitchens — to form a dynamic, staggered façade.

▶ Each bedroom, kitchen, and balcony is strategically pushed out to ensure uninterrupted views and enhanced natural light. 
▶ Lively interplay of volumes that breathes individuality into every unit while maintaining harmony across the whole building.

Jenga Heights  [Made with Revit, D5 Render Adobe Photoshop]
Jenga Blocks
Evolution of the form
The architectural form of Jenga Heights draws direct inspiration from the game Jenga, where individual blocks are strategically removed or rearranged to create a visually engaging and structurally playful stack. This concept is reinterpreted in the building’s design process.
The evolution begins with a simple, large cuboid mass — representing the basic volume of the apartment block. From this primary form, smaller cuboids are extruded outward to create distinct spatial pockets for rooms such as bedrooms, kitchens, and balconies. Each extrusion is deliberate, not only breaking the monotony of the building’s envelope but also enhancing functionality by allowing more light, ventilation, and privacy to these spaces.


Radial symmetry
This process results in a dynamic, staggered facade, mimicking the uneven yet balanced form of a Jenga tower. The irregular projections bring a sense of movement and identity to the structure, while also offering practical benefits such as panoramic views, increased surface exposure, and private outdoor spaces for each unit.
In essence, the form of Jenga Heights evolves from a uniform mass into a lively composition of interlocking volumes — a thoughtful blend of playfulness and purposeful design.
​​​​​​​
Evolution of the Building Form [Made with Photoshop]

Floor Layout [Made with Photoshop]

Unique Floor Plan
As the design of Jenga Heights evolved from a singular cuboid into a dynamic cluster of extruded volumes, the next step was to translate this expressive form into a functional and livable structure. To maintain the visual rhythm of shambled Jenga blocks stacked atop one another, no two consecutive floors share the same extrusion pattern or internal layout. Each level is designed to have a distinct identity, contributing to the overall sense of motion and layered complexity.
To support this architectural variety and maximize functional use, the building integrates a mix of 1, 2, and 3 BHK configurations. This decision not only offers versatility in housing options but also ensures that the internal programs complement the external form.
Each floor is dedicated to a specific type of unit, allowing for focused planning and optimization of space. The configuration is as follows:
▶ 1st Floor – Dedicated entirely to 1 BHK units, keeping the base level compact and open.
▶ 2nd, 4th, 6th, and 8th Floors – Assigned to 2 BHK layouts, striking a balance between compactness and spaciousness.
▶​​​​​​​ 3rd, 5th, and 7th Floors – Designed exclusively for 3 BHK units, making full use of larger extrusions and providing generous living spaces.
This alternating arrangement creates a rhythmic shift in floorplates, further emphasizing the Jenga-like aesthetic and making the building look like an abstract sculpture of shuffled volumes. At the same time, it ensures a functional response to varied family sizes and housing needs — all while maintaining structural balance and visual harmony.
Technical Plans
Click to Zoom 
Technical Plan: Basement Floor
Technical Plan: Basement Floor
Technical Plan: 0th Floor
Technical Plan: 0th Floor
Technical Plan: 1st Floor
Technical Plan: 1st Floor
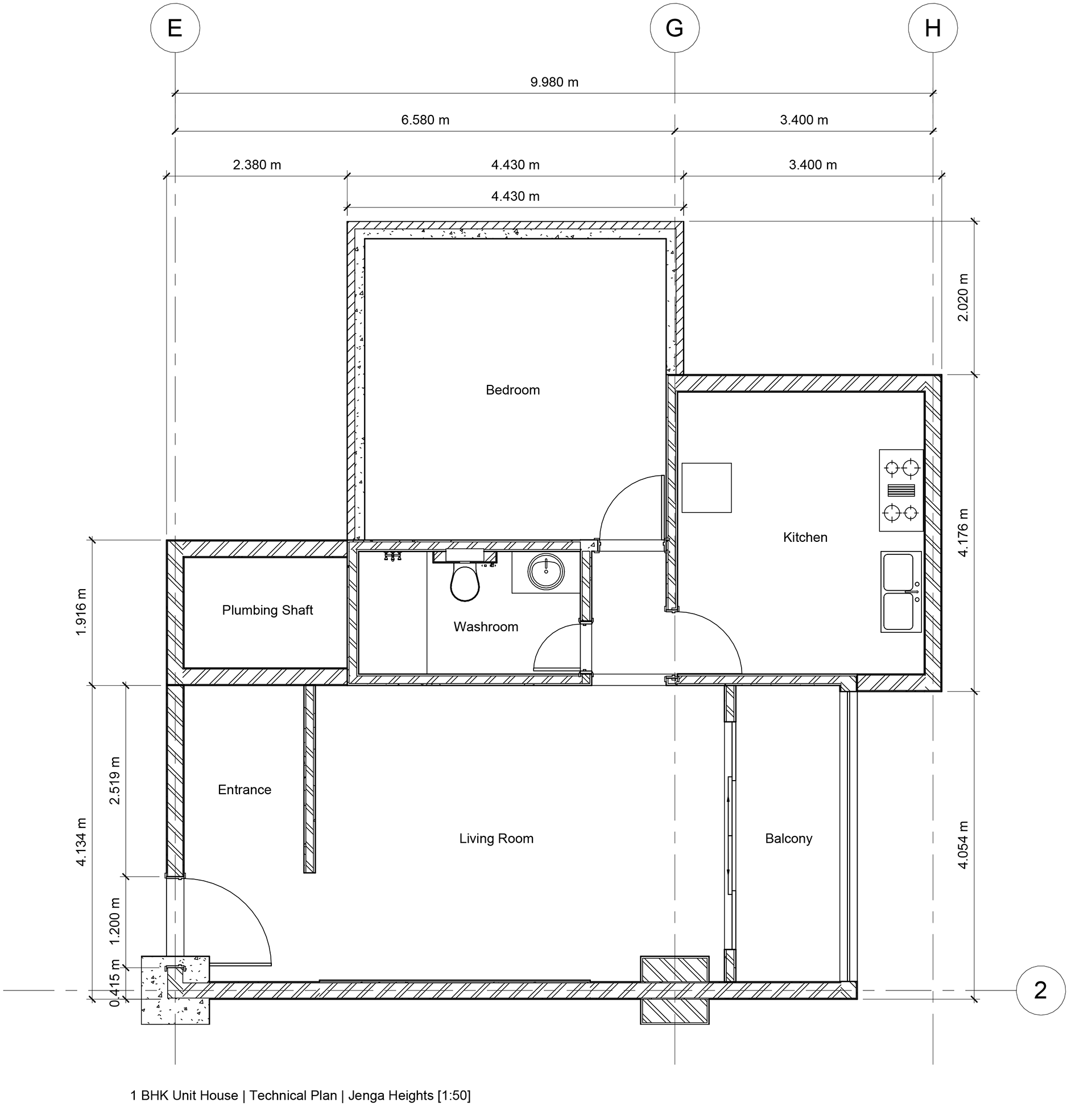
Technical Floor Plan: 1BHK
Technical Floor Plan: 1BHK
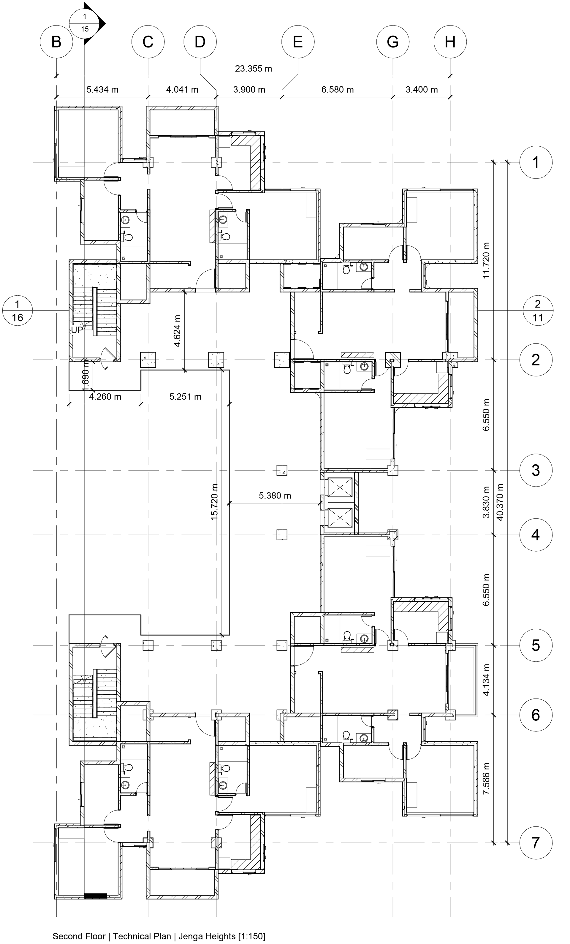
Technical Plan: 2nd, 4th, 6th and 8th Floors
Technical Plan: 2nd, 4th, 6th and 8th Floors
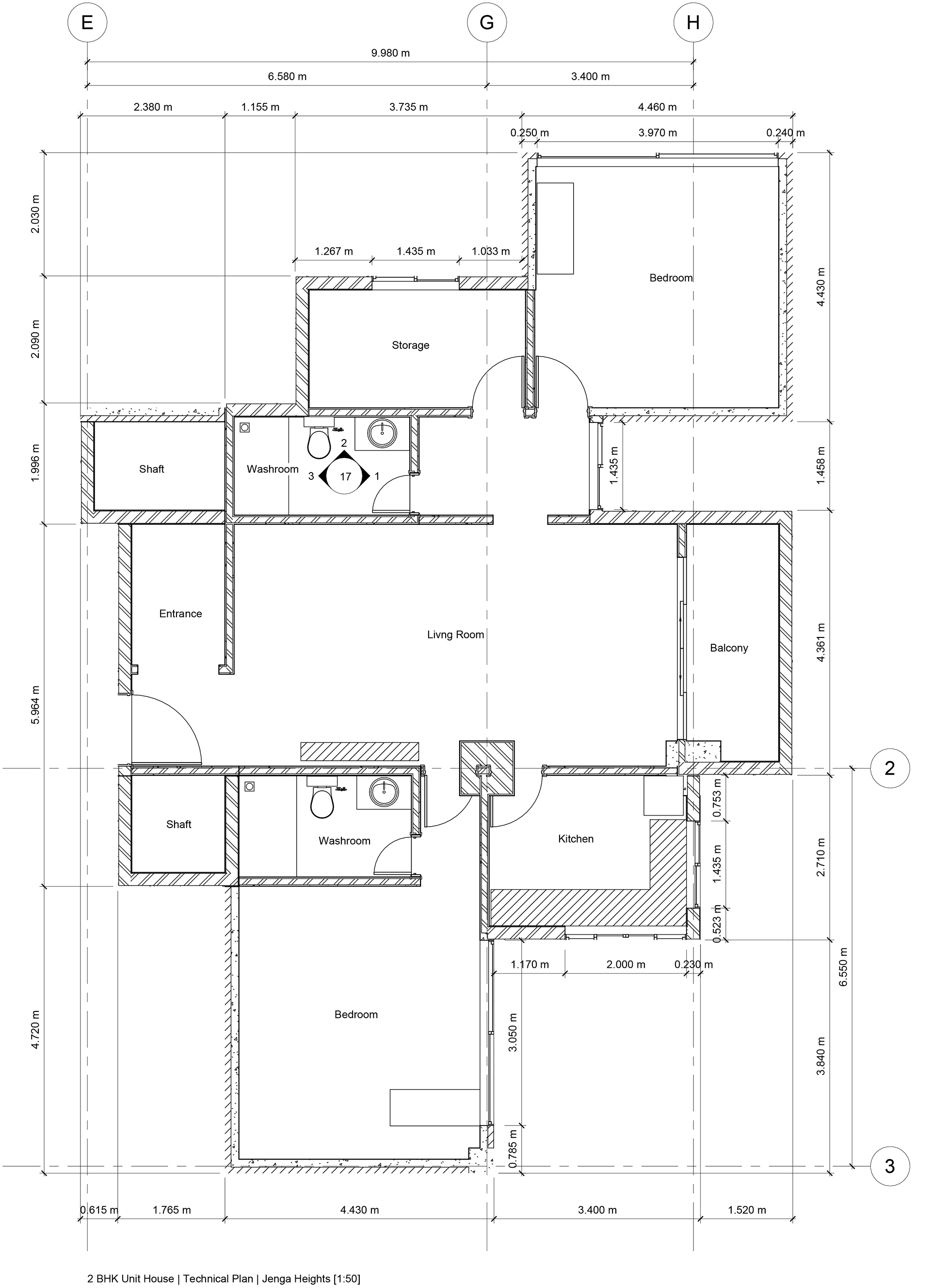
Technical Floor Plan: 2BHK
Technical Floor Plan: 2BHK
Technical Plan: 3rd, 5th, and 7th Floors
Technical Plan: 3rd, 5th, and 7th Floors
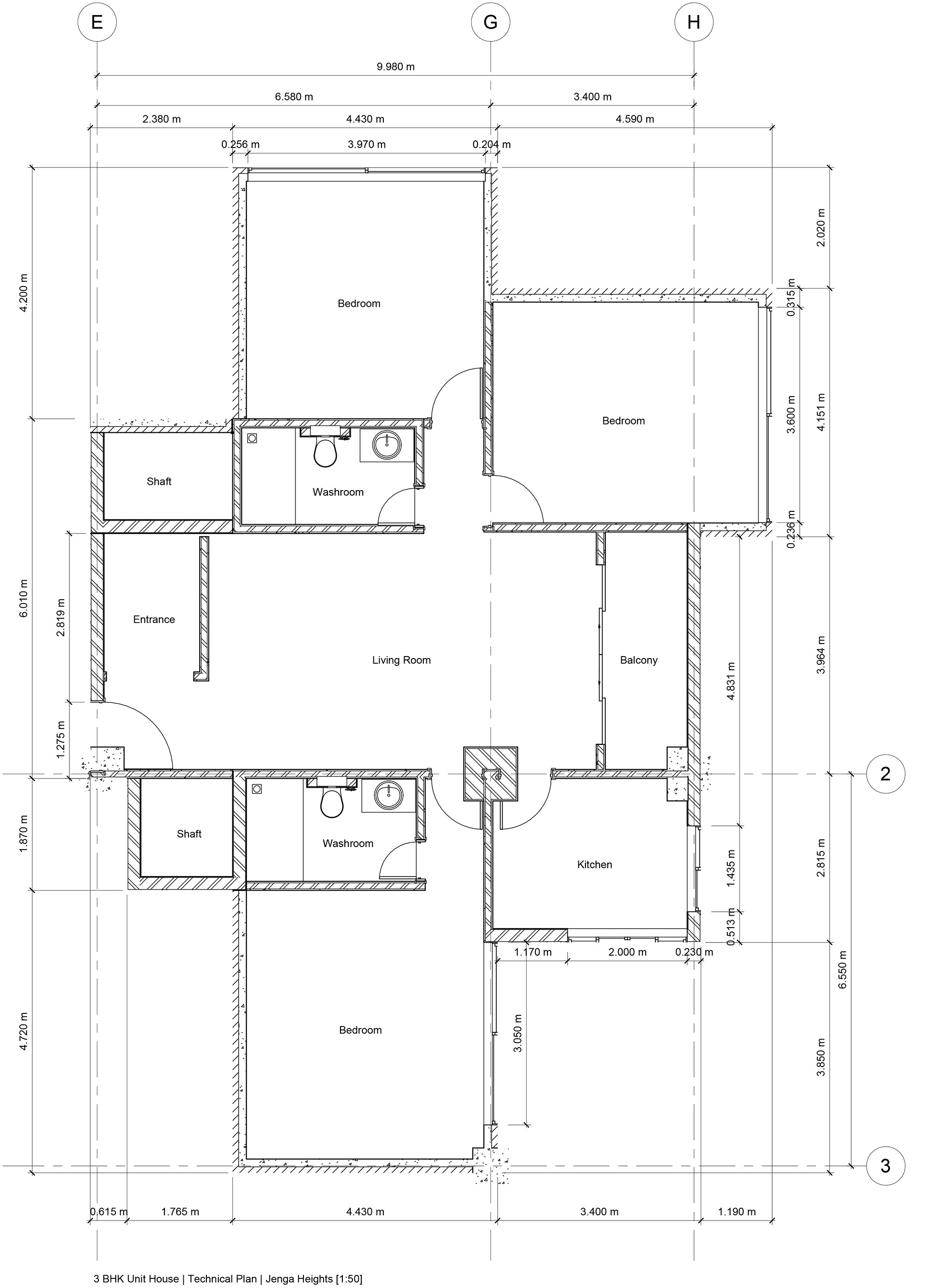
Technical Floor Plan: 3BHK
Technical Floor Plan: 3BHK
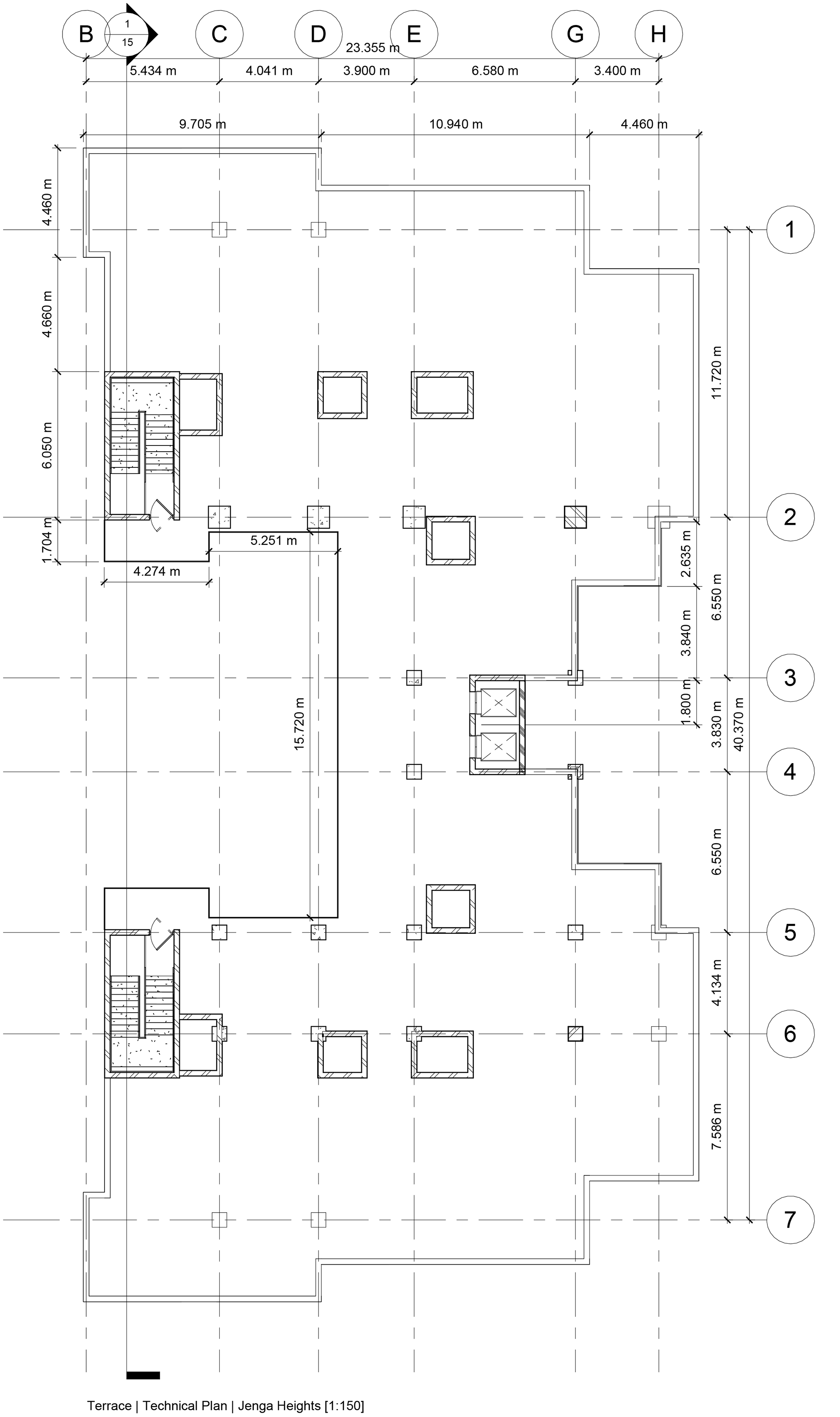
Technical Plan: Terrace Floor
Technical Plan: Terrace Floor

You may also like

Back to Top