This senior living community is thoughtfully designed for individuals aged 65 and above. It offers a vibrant and engaging lifestyle with amenities that promote excitement, comfort, and well-being in their golden years. The community features beautifully landscaped walking paths that encourage daily strolls and gentle exercise, while also being fully vehicle-friendly for convenient access and mobility. More than just a residential area it functions as a self-sufficient community — complete with:
▶ healthcare services,
▶ recreation centres,
▶ social hubs, and
▶ peaceful green spaces
▶ pedestrian and vehicle friendly circulation
— fostering a strong sense of belonging, independence, and connection among its residents.​​​​​​​
Silver Nest Living Community [Made with D5 Render]
What makes this community truly unique is its ability to cater to both seniors who live independently and those who require daily assistance.
Assisted Living
The assisted living quarters accommodates up to three residents, fostering a supportive and home-like environment that encourages social interaction without compromising privacy.
The building comprises three floors, each featuring a unique communal space at its centre — from cozy lounges for relaxed conversations to activity rooms for games, arts, and group wellness sessions. These shared areas are designed to promote engagement and prevent isolation, enhancing the quality of life for every  esident.

Assisted Living in Silver Nest Living Community [Made with D5 Render]​​​​​​​

Ground Floor plan | Assisted Living  | Silver Nest Living Community [Made with Revit]​​​​​​​
Ground Floor plan | Assisted Living  | Silver Nest Living Community [Made with Revit]​​​​​​​
Unit Floor plan | Assisted Living  | Silver Nest Living Community [Made with Revit]
Unit Floor plan | Assisted Living  | Silver Nest Living Community [Made with Revit]
Isometric view | Assisted Living  | SC Living Community [Made with Revit]​​​​​​​
Isometric view | Assisted Living  | SC Living Community [Made with Revit]​​​​​​​
Independent Living
The independent living community is designed specifically for active and self-sufficient seniors who value their independence while enjoying the benefits of a close-knit neighbourhood.
Each unit is thoughtfully equipped with private parking, allowing residents the freedom to come and go as they please.
To promote a socially engaging and health-conscious environment, spacious communal outdoor areas are available — including landscaped gardens, seating zones, and walking paths ideal for casual gatherings, group activities, or peaceful relaxation.
Altogether, the independent living community offers a perfect balance of freedom, community, and comfort for seniors who wish to live life on their own terms.

Independent Living in Silver Nest Living Community [Made with D5]

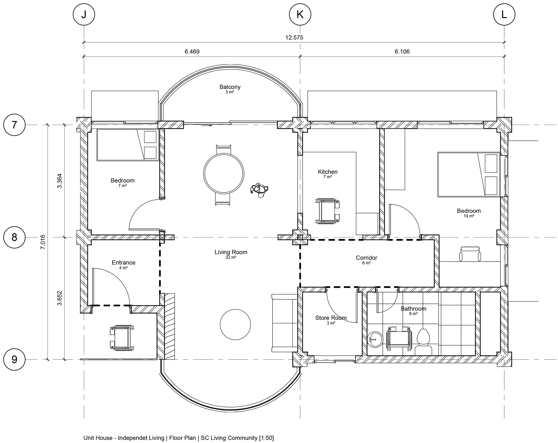
Unit Floor plan | Independent Living  | Silver Nest Living Community [Made with Revit]

Ground Floor plan | Independent Living  | Silver Nest Living Community [Made with Revit]

Amminities
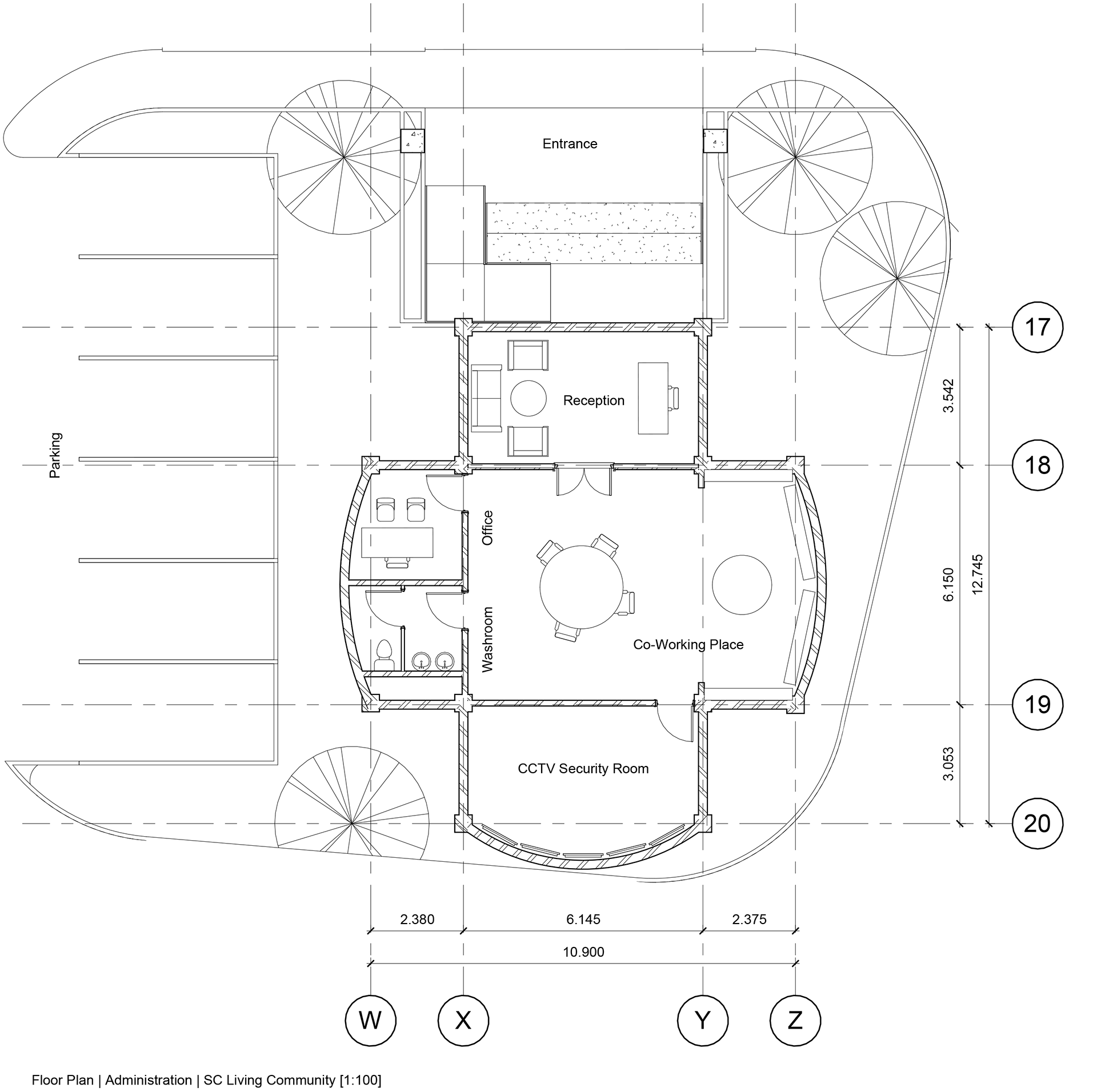
Ground Floor plan | Administration  | Silver Nest Living Community [Made with Revit]
Ground Floor plan | Administration  | Silver Nest Living Community [Made with Revit]
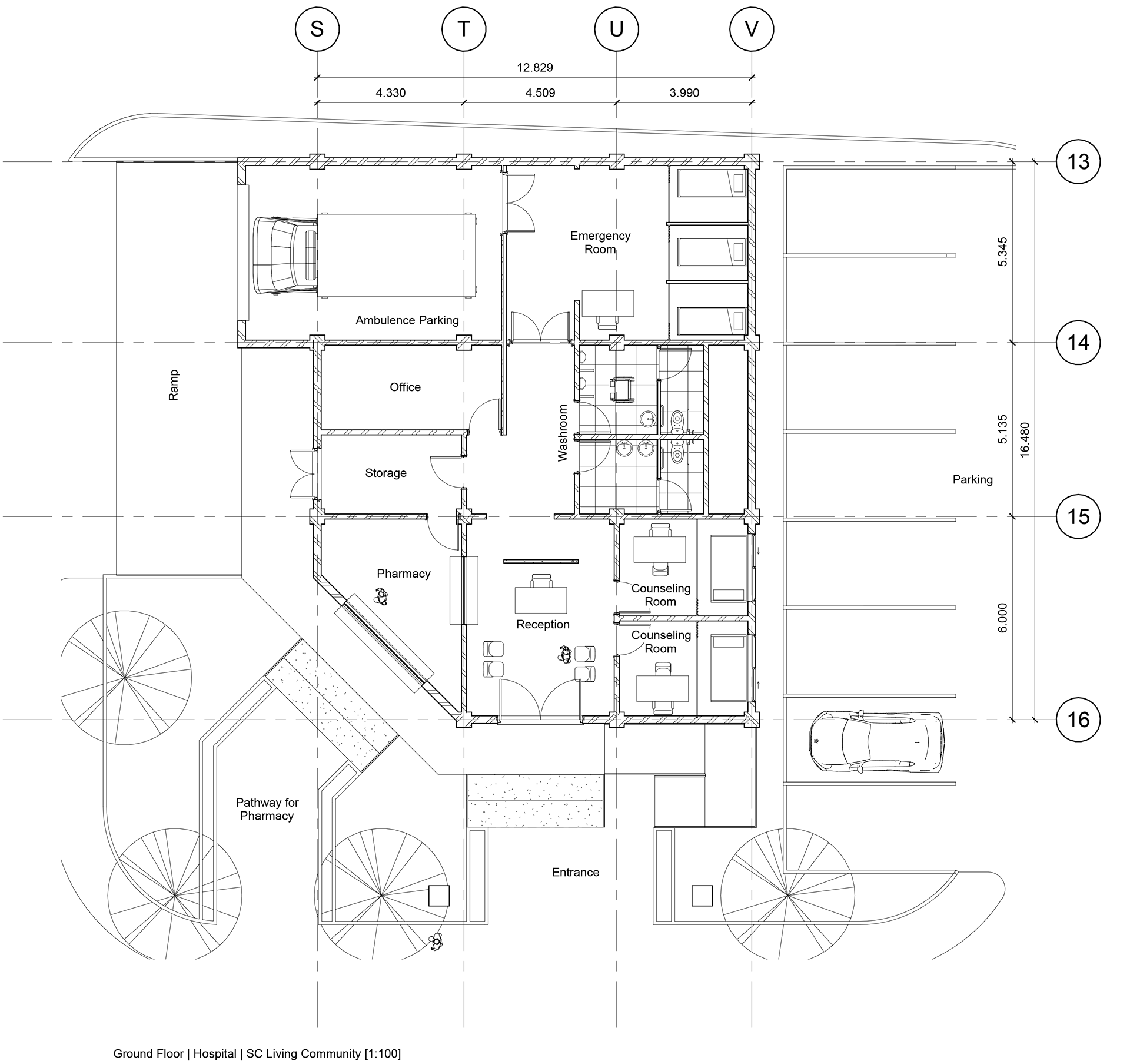
Ground Floor plan | Health Clinic  | Silver Nest Living Community [Made with Revit]
Ground Floor plan | Health Clinic  | Silver Nest Living Community [Made with Revit]
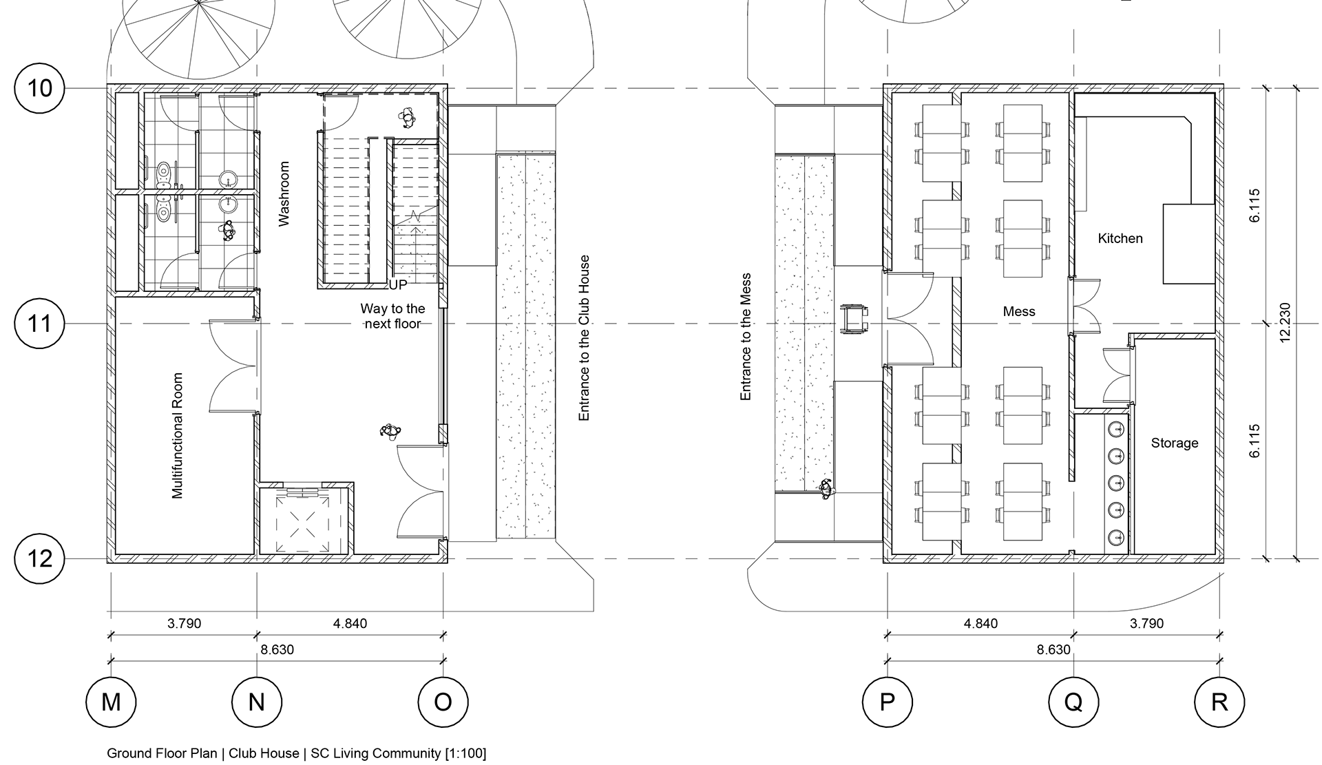
Ground Floor plan | Club House | Silver Nest Living Community [Made with Revit]
Ground Floor plan | Club House | Silver Nest Living Community [Made with Revit]
First Floor plan | Club House | Silver Nest Living Community [Made with Revit]
First Floor plan | Club House | Silver Nest Living Community [Made with Revit]
Gallery

You may also like

Back to Top